Save
Ask
Tour
Hide
$209,900
New Listing
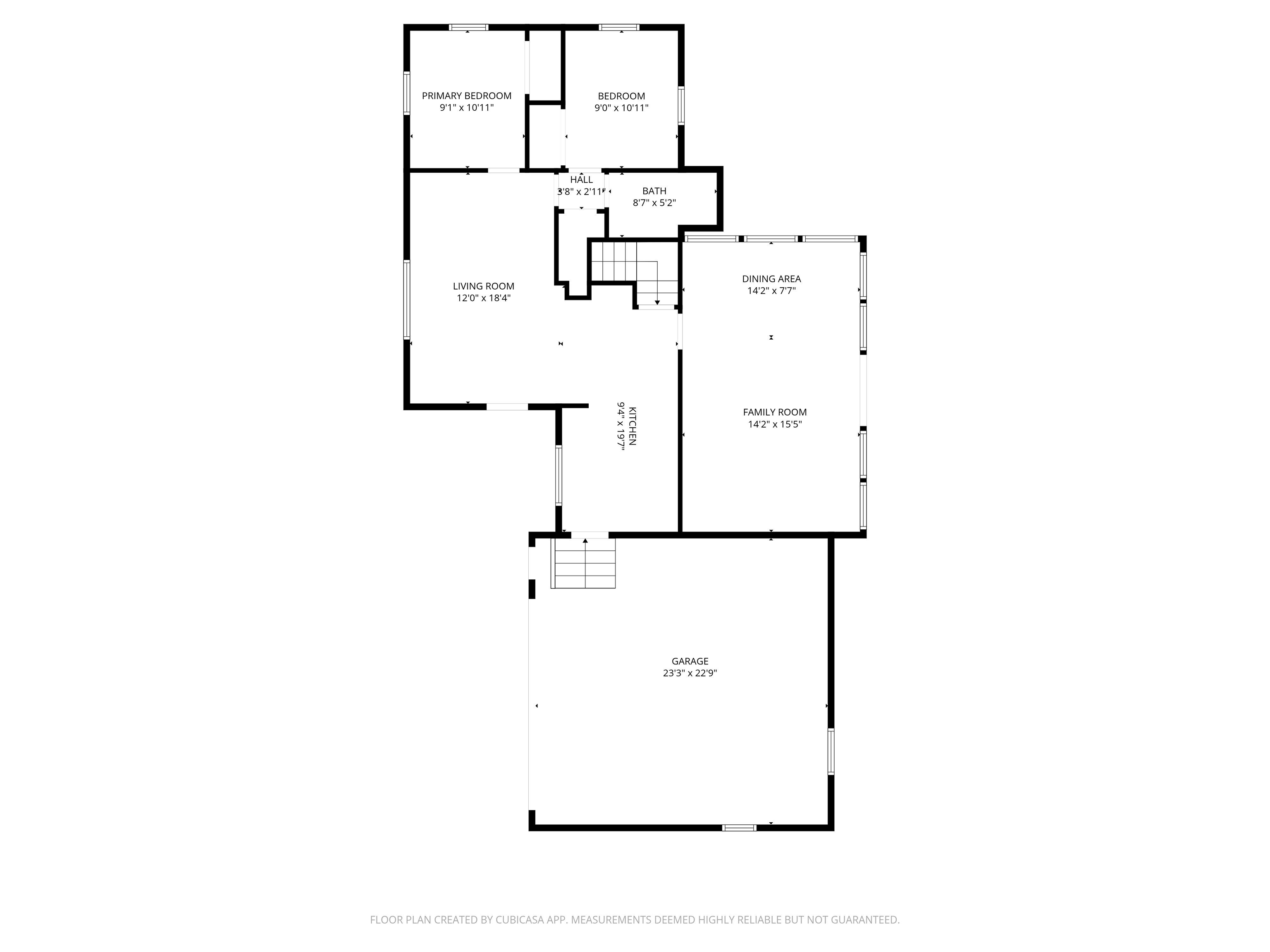
10400 Bray RoadThetford Township, MI 48420
For Sale|Single Family Residence|Active
2
Beds
1
Total Bath
1
Full Bath
1,108
SqFt
$189
/SqFt
1950
Built
County:
Genesee
Call Now: 888-825-1420
Is this the listing for you? We can help make it yours.
888-825-1420



Save
Ask
Tour
Hide
Completely redone with modern finishes throughout, this beautiful home is move-in ready and waiting for new owners! Step inside to find all-new flooring, fixtures, and a stunning new kitchen with stylish updates and plenty of workspace. The tiled shower adds a touch of luxury to the refreshed bathroom, while the spacious basement offers great storage or potential for additional living space. Enjoy year-round comfort in the heated all-seasons room overlooking the serene, park-like setting on over 2 acres. The property also features a convenient circle driveway and an attached 2-car garage - everything you need for comfortable, modern living in a peaceful setting!
Save
Ask
Tour
Hide
Listing Snapshot
Price
$209,900
Days On Site
0 Days
Bedrooms
2
Inside Area (SqFt)
1,108 sqft
Total Baths
1
Full Baths
1
Partial Baths
N/A
Lot Size
2.23 Acres
Year Built
1950
MLS® Number
5050191937
Status
Active
Property Tax
$1,457
HOA/Condo/Coop Fees
N/A
Sq Ft Source
N/A
Friends & Family
Recent Activity
11 hours ago | Listing first seen on site | |
11 hours ago | Listing updated with changes from the MLS® |
General Features
Acres
2.23
Attached Garage
Yes
Cross Street
Wilson / Dodge
Disclosures
Taxes Not Homestead Exempt
Garage
Yes
Garage Spaces
2
Levels
One
Parking
AttachedDirect AccessGarage Door Opener
Property Sub Type
Single Family Residence
Sewer
Septic Tank
Special Circumstances
Standard
SqFt Above
1108
Style
Ranch
Water Source
PrivateWell
Interior Features
Basement
Unfinished
Heating
Forced AirNatural Gas
BathFull
Bedroom 1
Dimensions - 11.0 x 9.0
Bedroom 2
Dimensions - 11.0 x 9.0
Save
Ask
Tour
Hide
Exterior Features
Construction Details
Vinyl Siding
Pool Features
None
Community Features
Financing Terms Available
CashConventionalFHAUSDA LoanVA Loan
MLS Area
Area08281ThetfordTwp
School District
Clio
Schools
School District
Clio
Elementary School
Unknown
Middle School
Unknown
High School
Unknown
Listing courtesy of REMAX Right Choice: 8103973000
IDX provided courtesy of Realcomp II Ltd. via EastCentralAssociationofREALTORS. Copyright © 2025 Realcomp II Ltd. Shareholders.
IDX information is provided exclusively for consumers' personal, non-commercial use and may not be used for any purpose other than to identify prospective properties consumers may be interested in purchasing and that the data is deemed reliable but not guaranteed accurate by the MLS.

IDX provided courtesy of Realcomp II Ltd. via EastCentralAssociationofREALTORS. Copyright © 2025 Realcomp II Ltd. Shareholders.
IDX information is provided exclusively for consumers' personal, non-commercial use and may not be used for any purpose other than to identify prospective properties consumers may be interested in purchasing and that the data is deemed reliable but not guaranteed accurate by the MLS.
Neighborhood & Commute
Source: Walkscore
Save
Ask
Tour
Hide
Did you know? You can invite friends and family to your search. They can join your search, rate and discuss listings with you.