Save
Ask
Tour
Hide
$235,000
New Listing
31 Don Horne Park RoadCassopolis Village, MI 49031
For Sale|Single Family Residence|Active
3
Beds
2
Total Baths
2
Full Baths
1,056
SqFt
$223
/SqFt
2026
Built
County:
Cass
Call Now: 888-825-1420
Is this the listing for you? We can help make it yours.
888-825-1420



Save
Ask
Tour
Hide
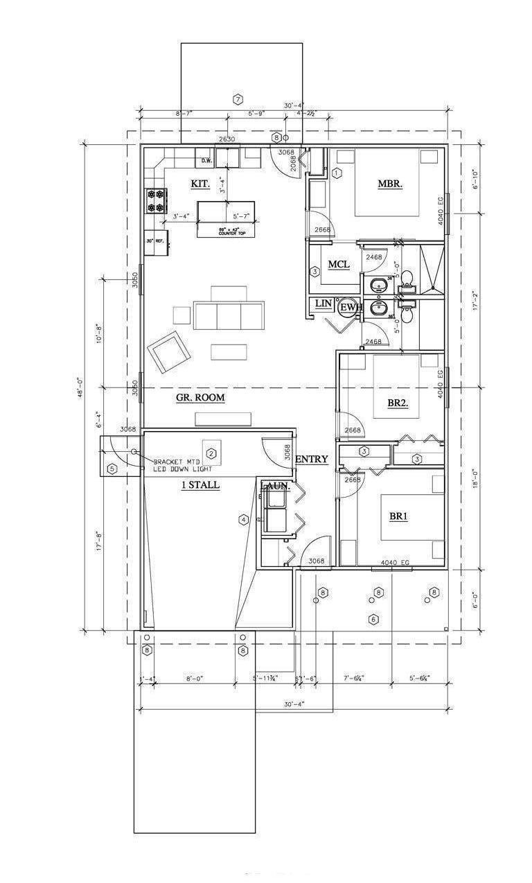
New construction Madison floor plan offering 3 bedrooms and 2 full baths. This thoughtfully designed home features a convenient one-car attached garage and comes complete with all appliances, making it truly move-in ready. Enjoy modern finishes and efficient living in a brand-new home built for today's lifestyle.Ideally located within walking distance to Don Horne Park, this property offers easy access to 36 acres of green space, including playgrounds, baseball fields, and a newly added dog park--perfect for outdoor enjoyment and community living.Don't miss your opportunity to purchase this brand-new home. Schedule your showing today!
Save
Ask
Tour
Hide
Listing Snapshot
Price
$235,000
Days On Site
0 Days
Bedrooms
3
Inside Area (SqFt)
1,056 sqft
Total Baths
2
Full Baths
2
Partial Baths
N/A
Lot Size
0.21 Acres
Year Built
2026
MLS® Number
66026003720
Status
Active
Property Tax
$125
HOA/Condo/Coop Fees
N/A
Sq Ft Source
Plans
Friends & Family
Recent Activity
| 2 hours ago | Listing first seen on site | |
| 2 hours ago | Listing updated with changes from the MLS® |
General Features
Acres
0.21
Attached Garage
Yes
Cross Street
Broadway & M-62
Foundation
Slab
Garage
Yes
Garage Spaces
1
Number Of Stories
1
Parking
AttachedPaved
Property Condition
New ConstructionUnder Construction
Property Sub Type
Single Family Residence
Sewer
Public Sewer
SqFt Above
1056
SqFt Total
1056
Style
Ranch
Water Source
Public
Interior Features
Appliances
DishwasherDryerMicrowaveRefrigeratorRangeWasher
Cooling
Central Air
Flooring
Vinyl
Heating
Electric
Laundry Features
Laundry ClosetMain Level
Window Features
ScreensStorm Window(s)
BathFull
Level - Main
Bedroom 2
Level - Main
Bedroom 3
Level - Main
Kitchen
Level - Main
Laundry
Level - Main
Living Room
Level - Main
Master Bathroom
Level - Main
Master Bedroom
Level - Main
Save
Ask
Tour
Hide
Exterior Features
Construction Details
Vinyl Siding
Lot Features
Level
Patio And Porch
Patio
Roof
Composition
Windows/Doors
ScreensStorm Window(s)
Community Features
Financing Terms Available
CashConventional
MLS Area
Area14062CassopolisVlg
Roads
Paved
School District
Cassopolis
Schools
School District
Cassopolis
Elementary School
Unknown
Middle School
Unknown
High School
Unknown
Listing courtesy of Chuck Jaqua, REALTOR: [email protected]
IDX provided courtesy of Realcomp II Ltd. via GreaterKalamazooAssociationofREALTORS. Copyright © 2026 Realcomp II Ltd. Shareholders.
IDX information is provided exclusively for consumers' personal, non-commercial use and may not be used for any purpose other than to identify prospective properties consumers may be interested in purchasing and that the data is deemed reliable but not guaranteed accurate by the MLS.
IDX provided courtesy of Realcomp II Ltd. via GreaterKalamazooAssociationofREALTORS. Copyright © 2026 Realcomp II Ltd. Shareholders.
IDX information is provided exclusively for consumers' personal, non-commercial use and may not be used for any purpose other than to identify prospective properties consumers may be interested in purchasing and that the data is deemed reliable but not guaranteed accurate by the MLS.
Neighborhood & Commute
Source: Walkscore
Save
Ask
Tour
Hide

Did you know? You can invite friends and family to your search. They can join your search, rate and discuss listings with you.